
营销中心:广州市天河区吉山新路街112号201室239
总部电话:(+86)020-22229258
邮箱:133399956@qq.com
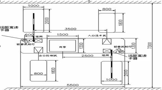
地址:小区停车场收费系统安全岛的规划:
安全岛不但是固定设备的基础,同时也起到了保护设备的作用。安全岛一般是采用混凝土浇灌而成的。根据现场的实际情况和设备的安装位置来确定安全岛的尺寸。注明:一般出口控制机不用切地感。现列举几个例子说明安全岛制作。
1.一进一出出口收费的设备在一起且中间要放收费岗亭,我们可以将安全岛做成长5.5米,宽1.3米,高0.15米的长方体,为了美观,我们可以将岛的两头做成弧行的,如图所示:

2.在浇灌安全岛之前要先将走线的管进行预埋。预埋线管要按布线的要求用镀锌管或是PVC管。
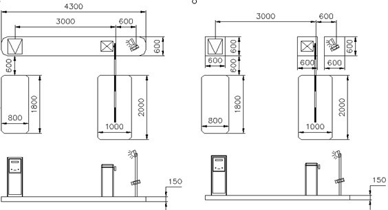
3.单进的安全岛:停车场系统厂家可将安全岛做成长4.3,宽0.5-0.6米,高0.15米长方体,两端可做成圆弧状。有时为节省工时和成本,可将安全岛做成三个60*60 *15CM的长方体.如图所示:
